Flexible Living. Powerful Potential.
ADUs are one of the most cost-effective ways to add livable square footage. With streamlined permitting and growing demand for flexible housing, they offer a low-risk, high-reward opportunity for homeowners and investors alike.

Transform Your Backyard
An ADU is a smart way to turn unused space into a steady stream of rental income. Whether it's a long-term tenant, mid-term traveler, or short-term guest, ADUs offer flexibility and financial freedom—right in your own backyard.
Build for Family, Plan for Future
ADUs are perfect for multi-generational living—whether you’re welcoming aging parents, giving grown kids a head start, or planning for future needs. Keep loved ones close while maintaining independence and privacy for everyone.
Use Your Equity to Build More
If you already own property, you may have untapped potential. Many homeowners can leverage existing equity to finance the construction of an ADU—creating a new asset that grows in value while increasing overall property worth.
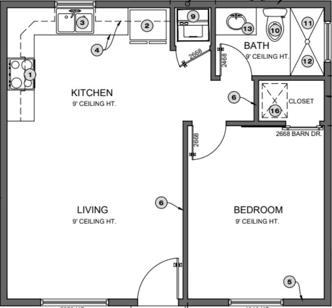
Available Floorplans
One Bedroom
Two Bedroom